Productive Domesticities

An Arrangement for Living in a Work-from-Home Era


Princeton, NJ
2020

 

For those who used to spend days at schools, studios, and offices, the pandemic has upended traditional boundaries between “home” and “work,” productive and reproductive labor. Yet these boundaries were already eroding. Indeed, they have long been a mark of privilege. “Work” for many involves aspects conventionally conceived as part of domesticity: it requires emotional or reproductive labor. It takes place in a home—your own or someone else’s. It happens at unusual hours and involves enlisting support networks that Fordist economies sought to render obsolete.

Meanwhile, suburban realities have separated from suburban myths. For decades, suburbs have hosted myriad productive and commercial activities. Increasingly they house diverse populations and even concentrations of poverty. And though suburbs have also seen denser development, the developer’s vaguely New Urbanist multifamily building is usually a bedroom community that reinvents the exclusions that defined suburbs of another age.

Productive Domesticities is a co-housing project conceived to support the precarious home-worker whose productive activities have been pushed to the spatial and economic margins of an emerging post-pandemic economy, and whose work, for any number of reasons, evades the relatively easy transition from a computer at an office desk to a laptop on a dining room table.

Located on the busiest corner of the Princeton Shopping Center’s Harrison Street edge, the project takes the productivity of contemporary domesticity as a given. To do so, seriously, must not only challenge the tidy boundaries of modernist urban planning dogma but also challenge the still-tidy boundaries of contemporary “mixed use.”

An out-of-work chef might retrofit their apartment with a small “ghost” kitchen and fulfill takeout orders via seamless. A parent casually caring for friends’ children might expand their operation into a certified home daycare. A hairdresser who started cutting friends’ hair at home during the lockdown might set up a home salon and work from their apartment on a permanent basis.

Coe-Scharff_ProductiveDomesticities_UnitDiagram_margin.png

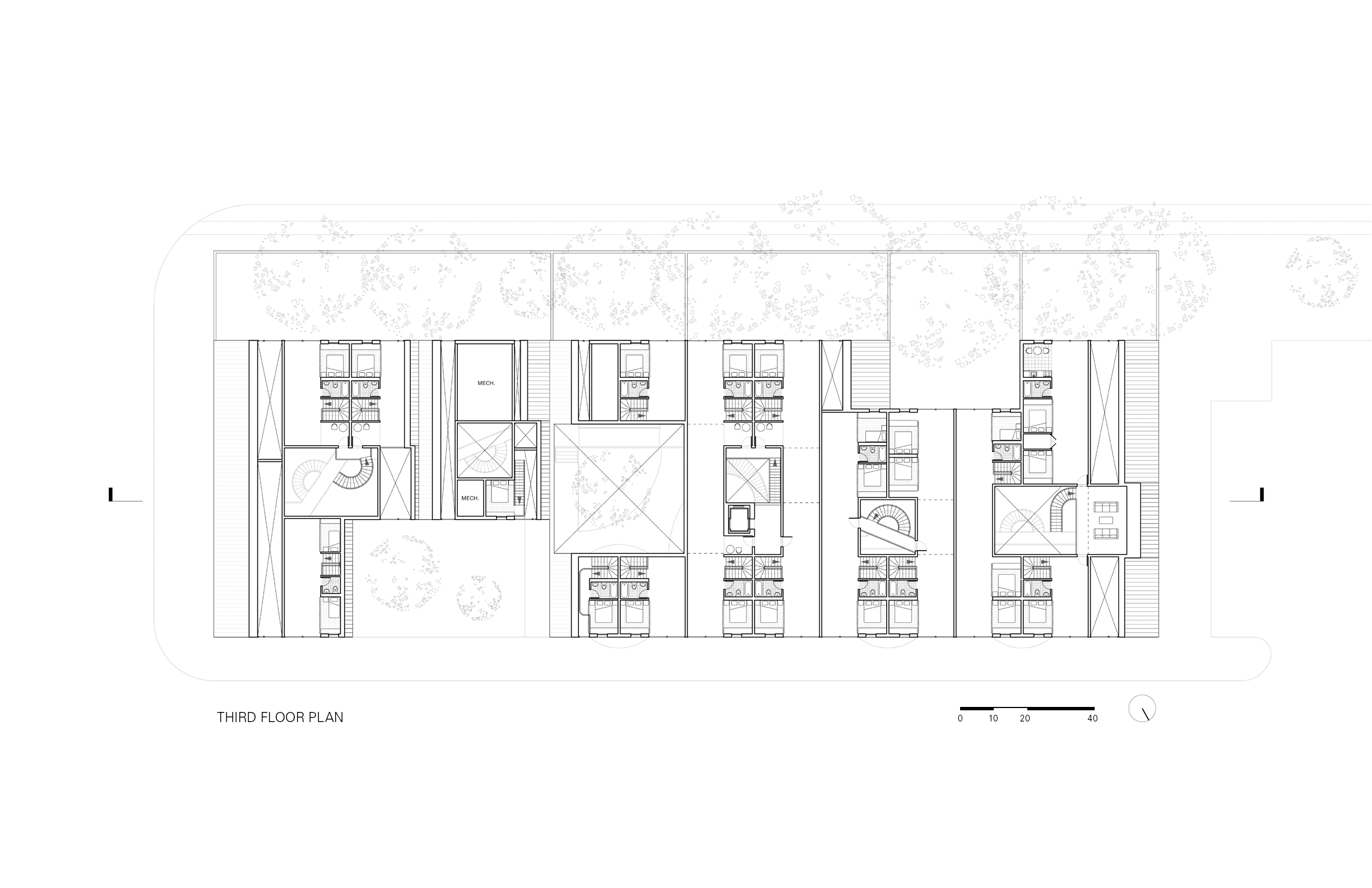
Architecturally, the project begins from the unit. If a conventional apartment organizes space into semi-flexible living areas and semi-fixed “service cores,” here the logic of the service core is extended to the entire reproductive program.

Kitchens, dining tables, bathrooms, bedrooms, and lightwells slot into a narrow stripe, leaving more than half the apartment as a linear blank slate, available to be fit out as needed to support occupants’ productive activities. A household might stage multiple activities in enfilade along the unit’s linear open space.

Coe-Scharff_ProductiveDomesticities_UnitPlans.png
ExplodedAxoBoard_webdimensions-01.png

Lightwells, corridors, and common spaces form a circulatory armature, threaded through the co-housing complex. Its nooks and crannies offer spillover spaces of collective domesticity—compensating, in part, for the domestic space surrendered by the units.

 

At a larger scale, the project intensifies multiple readings of front and back, public and private, domestic and commercial, house and shed. Its façade gestures to the “striping” of its plan, while playing on the uneasy image of a building that defies easy programmatic or typological characterization.

Urbanistically, it turns its back to the busy Harrison street, instead facing the shopping center and gently mirroring the shopping center’s outer courtyard with an outer courtyard of its own.

At the southeast end of the building, where the outer courtyard buffers apartments from the shopping center, ground floor units with double-height spaces provide double-height live-work studios. At the other end of the building, ground floor units front directly onto the street, with facades that ambiguously offer the possibility of use as storefront, office, or private dwelling.

 
Coe-Scharff_ProductiveDomesticities_Section-01.png
Previous
Previous

Living on the (Lot) Line

Next
Next

Trellis Housing